Cabinets dentaires, locaux professionnels

Association - Collaboration

Laboratoires de prothèse

Produits et équipements dentaires

Matériel laboratoire

Autres

Pro
5
MOUGINS (06) - A VENDRE POUR OTHODONTISTES PEDODONTISTES EXCLUSIVEMENTMOUGINS (06) - A VENDRE POUR OTHODONTISTES PEDODONTISTES EXCLUSIVEMENTMOUGINS (06) - A VENDRE POUR OTHODONTISTES PEDODONTISTES EXCLUSIVEMENTMOUGINS (06) - A VENDRE POUR OTHODONTISTES PEDODONTISTES EXCLUSIVEMENTMOUGINS (06) - A VENDRE POUR OTHODONTISTES PEDODONTISTES EXCLUSIVEMENT

Mougins (06) - a vendre pour othodontistes pedodontistes exclusivement

mercredi 10 décembre 2025 22h55

 -

Disponible dès maintenant

*** IDEAL ORTHODONTISTES ET/OU PEDODONTISTES ***

A VENDRE - LOCAUX NEUFS SOUMIS A TVA

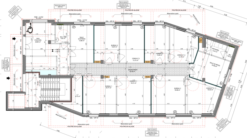
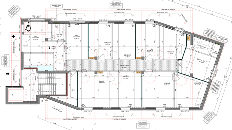
Magnifique opportunité ! Dans un quartier prisé de MOUGINS sur axe fréquenté par 45.000 véhicules /jour nous vous proposons un plateau ERP neuf de 230 m² dans un immeuble contemporain orienté sur un espace végétalisé.

La configuration actuelle permet une création modulaire de 8 salles de consultation exposées à la lumière du jour avec point d’eau, il comprend un espace accueil de 30 m2, et une grande salle d'attente. Double accès sur la rue et à l'arrière du bâtiment. 8 places de stationnement sur la parcelle.

Normes PMR, lumineux et traversants adaptés pour accueillir un plateau technique dans un environnement idéal, verdoyant et une atmosphère favorisant la qualité de vie au travail.

Prestations haut-de-gamme et excellente visibilité. Locaux livrés finis : cloisonnés, faux plafonds, climatisation réversible, alarme, revêtement au sol.

Idéal pour développer une activité en orthodontie et/ou pédodontie et profiter d'une dynamique de groupe.

Proximité directe avec la clinique Arnault Tzanck et à 15min de la technopole de Sophia-Antipolis Disponibilité immédiate.

Prix de vente : nous consulter

Info :
contact@medicings.com
01.46.47.06.36

Informations complémentaires

MEDICINGS
Nice (06), Mandelieu La Napoule (06), Mougins (06), Cannes (06), Monaco (98)

OrthodontieAssociationCollaborationCessionProgramme immobilierAgence

Autres annonces susceptibles de vous intéresser

Alertes personnalisées

Ne passez pas à côté des annonces qui vous intéressent !

Créer une alerte

Nos partenaires

Abcdent - annonces dentaires

abcdent.pro est un service du groupe Information Dentaire